Appartement
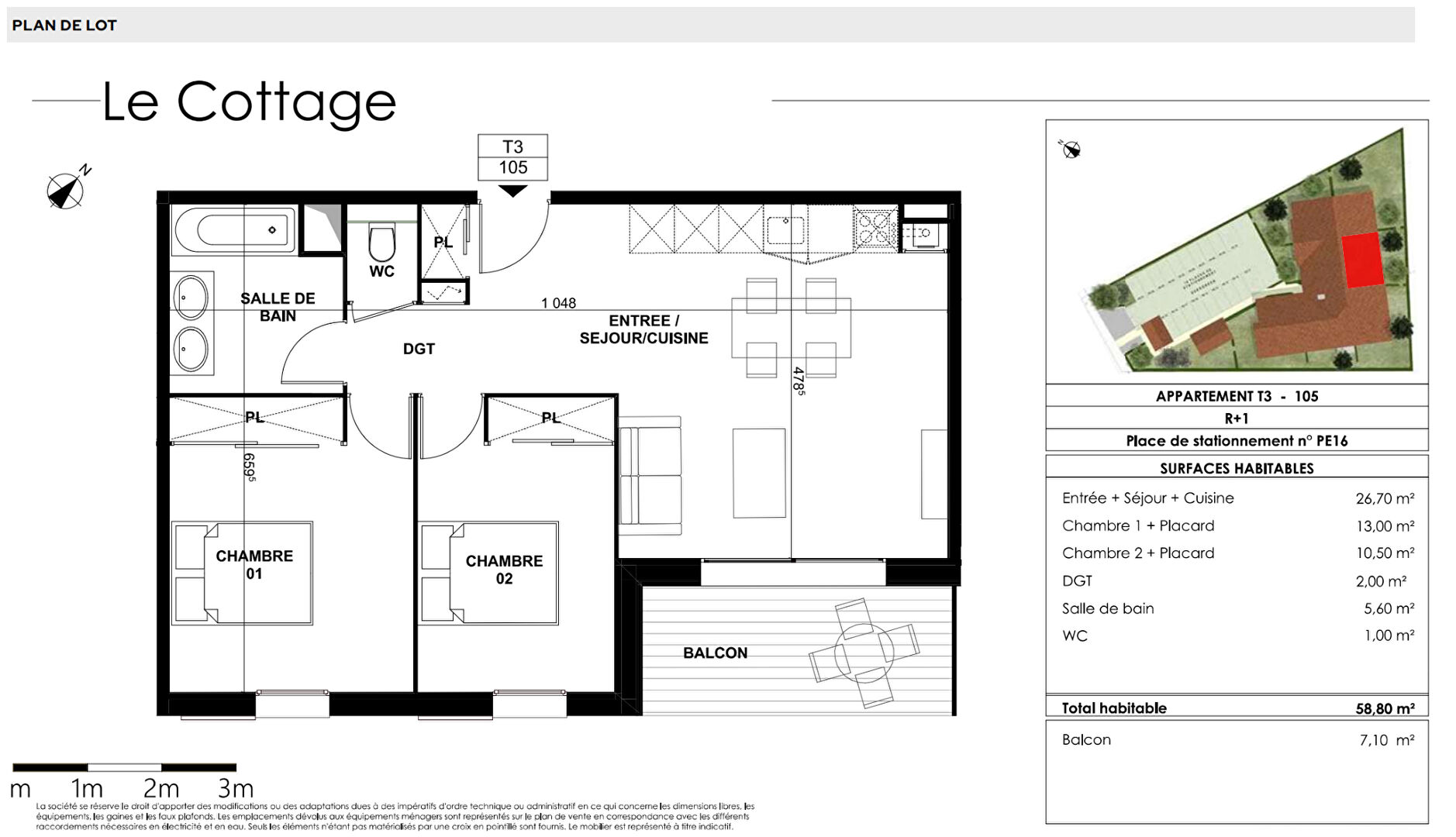
Appartement • 3 p. • 2 ch. • 58.08 m2
Biscarrosse
840 €
Description du bien
Au sein d'une résidence récente, bel appartement de 3 pièces, situé au premier et dernier étage comprenant : une entrée avec placards, un séjour-cuisine, WC séparés, une salle de bains, deux chambres avec placard. Le droit de jouissance exclusive et privative d'un balcon de 7,10m². Un emplacement de parking extérieur accompagne ce bien. Chauffage et eau chaude : chaudière individuelle gaz Loyer mensuel 840,00 euros charges comprises dont 80,00 euros de provisions pour charges (avec régularisation annuelle) Honoraires TTC à la charge du locataire 638,00 euros dont 174,00 euros d'honoraires d'EDL. Dépôt de garantie 760.00 euros LOGEMENT MEUBLÉ. Contactez nous par téléphone au 05.33.09.52.31 ou par mail gestion-bordeaux@epsilium.fr


