Appartement
Appartement • 3 p. • 2 ch. • 55 m2
Aulnay Sous Bois
192 000 €
3 491 €/m²
Description du bien
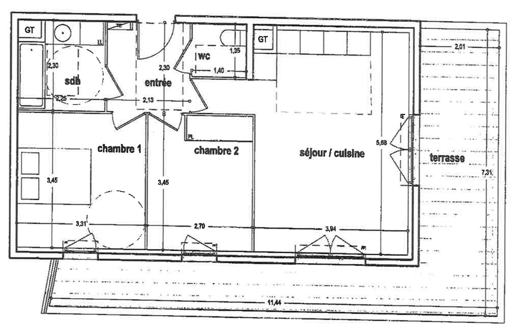
L'agence EPSILIUM de Paris 4ème vous propose ce charmant appartement 3 pièces de 55 m² , avec une terrasse de 26 m2 en double exposition Sud et Ouest à Aulnay-sous-Bois dans le Quartier Merisiers - Etangs. Situé au 2ème étage d'un immeuble récent de 2015 avec ascenseur, situé coté intérieur de la résidence sans vis à vis. - Une entrée accueillante donnant sur un séjour-cuisine de 24 m² ouvert sur un terrasse de 26 m2 exposé Sud-Est, parfait pour profiter des beaux jours. - Deux chambres spacieuses donnant sur terrasse également - Une salle de bains fonctionnelle et un WC séparé. - Les fenêtres en PVC double vitrage sont équipées de volets roulants, garantissant confort et isolation. - DPE C - Une place de Parking complète ce bien - Charges de copropriété comprenant Chauffage / eau chaude / eau froide / entretien de la résidence - 240 euros / mois **Honoraires à la charge du vendeur.** Pour plus de renseignements ou organiser une visite, contactez Adrien au 06.69.63.91.14 Copropriété de 87 lots. Charges annuelles : 2903 euros. ADRIEN PIN (EI) Agent Commercial - Numéro RSAC : - .
Diagnostic de performance énergetique (DPE)
Indice d’émission de gaz à effet de serre (GES)
Détails financiers
Charges annuelles : 2 903 €


